Продажа 2-комнатной квартиры в новостройке 70.14 м2, улица Лесной городок, Нижний Новгород

9 990 000
142 429 ₽ / кв.м.
Сегодня, 15:57
1 / 11
Адрес Нижний Новгород, Канавинский район, ул. Лесной городок
Количество комнат 2 – комнатная
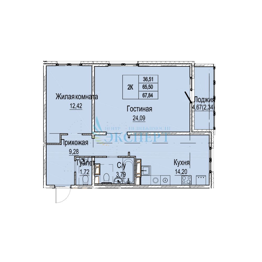
Площадь (кв.м.) Общая: 70.14 Жилая: 36.51 Кухня: 14.2 Комнаты: 24.09+12.42 70.14 / 36.51 / 14.2
Этаж 7 из 9
Дом Панельный
Санузел раздельный
Планировка изолированная
Отделка Чистовая отделка
Отопление Автономное (котельная)
Балкон / лоджия 1 лоджия
Газ есть
Грузовой лифт есть

Дом сдан !   ЖК "Новый город"

Торопитесь, Вы еще успеваете купить квартиру по привлекательной цене.

      Продаётся 2-комнатная квартира в строящемся доме (дом 6), срок сдачи: IVкв. 2025, общей площадью 70,4   кв.м., на 7 этаже. Новый жилой комплекс в   Канавинском районе Нижнего Новгорода представляет собой комплексную застройку, состоящую из   монолитно-панельных зданий.

    Предчистовая отделка   - стены и потолки в квартире ровные, на полу ровная чистовая, сухая стяжка. Сделана электрика: электрощиток в квартире, выводы под розетки, выключатели и светильники. Разведены трубы в ванной   и на кухне.

Застройщик определяет свои условия готовности квартиры для приёмки.

Переуступка права требования.

    Цена указана за наличный расчет или по обычной ипотеке со ставкой от 18 % , есть предложения по семейной 6% ипотеке , ставка ниже - цена выше. Звоните, уточняйте актуальность, квартир остается все меньше, данное предложение - отличный инвест проект!

 

  Экологически чистый район с развитой инфраструктурой вблизи заповедника «Березовая роща» — идеальное место для семей с детьми и активной молодежи. Всего 20 минут до центра города на автомобиле или общественном транспорте, остановка рядом с домом. Все социальные объекты находятся шаговой доступности, есть места для отдыха и занятий спортом.

Продуманный комфорт:

Продуманные планировки — максимум полезной площади, Стильный панельный дом с энергосберегающими фасадами, Собственная крышная котельная, Система фильтрации воды в доме, Подсобное помещение общего пользования для хранения вещей на каждом этаже.

Благоустройство двора:

Уютный двор с благоустроенной территорией, Спортивные площадки для разных возрастных групп, Детские площадки с антиударным покрытием, Открытый и крытый паркинги.

Выгодные возможности для покупки.

Важно! Центр недвижимость Эксперт - ПАРТНЕР застройщика, несет полную финансовую ответственность за каждую сделку с недвижимостью. 

Являемся официальными партнерами Сбербанка России,   Россельхоз банка, Дом РФ, Совком банк, Уралсиб, Газпром банк и др.
С нами Вы можете оформить ипотеку на льготных условиях! Работаем с клиентами любой сложности и в режиме одного окна! Присутствует программа Трейд -Ин!
Центр недвижимости Эксперт желает Вам удачного поиска недвижимости!

Информация о контактах у вновь введенных объектов за последние 3 дн. доступна только авторизованным пользователям системы "Центр".
Почему мы это делаем