Продажа 2-комнатной квартиры в новостройке 59.8 м2, примерно в 0,3 км на северо-восток от д.Анкудиновка, д.3 в ЖК КМ Анкудиновский парк, деревня Анкудиновка

9 687 600
162 000 ₽ / кв.м.
19 августа 2025
1 / 25
Адрес городской округ Нижний Новгород, деревня Анкудиновка, примерно в 0,3 км на северо-восток от д.Анкудиновка, д.3 в ЖК КМ Анкудиновский парк
Количество комнат 2 – комнатная
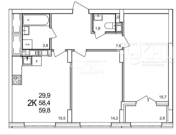
Площадь (кв.м.) Общая: 59.8 Жилая: 29.9 Кухня: 15.5 Комнаты: 14.2+15.7 59.8 / 29.9 / 15.5
Этаж 13 из 19
Дом Монолитно-кирпичный
Санузел раздельный
Планировка изолированная
Отделка Дизайнерский ремонт
Отопление Центральное
Балкон / лоджия 1 лоджия
Грузовой лифт есть

Предлагаем Вашему вниманию рассмотреть прекрасную двухкомнатную квартиру в динамично развивающемся ЖК "Анкудиновский Парк"! Срок сдачи 2 квартал 2026 года. Это отличный вариант для тех, кто ценит комфорт, функциональность и удобное расположение. Квартира будет полностью готова к проживанию, Вам не придется тратить время и средства на обустройство. Заезжайте и наслаждайтесь жизнью!

"Анкудиновский Парк" – это современный микрорайон с развитой инфраструктурой. Здесь есть все необходимое для комфортной жизни: магазины, школы, детские сады, спортивные площадки и многое другое. Удобная транспортная развязка позволит Вам быстро добраться в любую точку города.

Расположение квартиры вблизи Щёлковского хутора – это еще один неоспоримый плюс. Здесь Вы сможете наслаждаться свежим воздухом, прогулками по лесу и активным отдыхом на природе. Это прекрасное место для восстановления сил и гармонии с собой.

Общая площадь квартиры с лоджией – 59,8 м2, кухня – 15,5 м2, две комнаты: 14,2 м2 и 15,7 м2, теплая лоджия – 2,8 м2.
Квартира будет сдана застройщиком полностью с качественным ремонтом и кухонным гарнитуром с техникой.   Раздельный санузел будет полностью облицован качественной плиткой и оборудован унитазом, раковиной с тумбой и ванной.

Не упустите свой шанс стать обладателем просторной и функциональной квартиры в одном из самых перспективных районов города! Застройщик предлагает возможность рассрочки до ввода объекта в эксплуатацию.

Агентство недвижимости ЧЕКНИ является официальным партнером застройщика. Бронируя квартиру (по цене застройщика) через нас, Вы абсолютно бесплатно получаете: консультацию по подбору квартиры под Ваши потребности и финансовые возможности, сопровождение до застройщика, а также до конца ноября проводится акция - при полной оплате сразу, Вы гарантированно получите скидку в 5% и данная квартира будет стоить для Вас 9203220 руб.! Скидка по акции составит 484380 руб. Торопитесь, акция скоро закончится!   Звоните прямо сейчас, чтобы забронировать это уникальное предложение! Мы уверены, что эта квартира станет Вашим идеальным домом!

Прохоров Михаил Иванович
maiorproha@mail.ru
Агентство недвижимости: " AH " Чекни "
г.Н.Новгород, ул.Семашко, д.33
chekni@sandy.ru
Все предложения этого агентства