Продажа дома, улица Барминская, Нижний Новгород

119 000 000
Сегодня, 13:36
  • Сегодня, 13:36
1 / 26
Адрес Нижний Новгород, Советский район, ул. Барминская, 12А
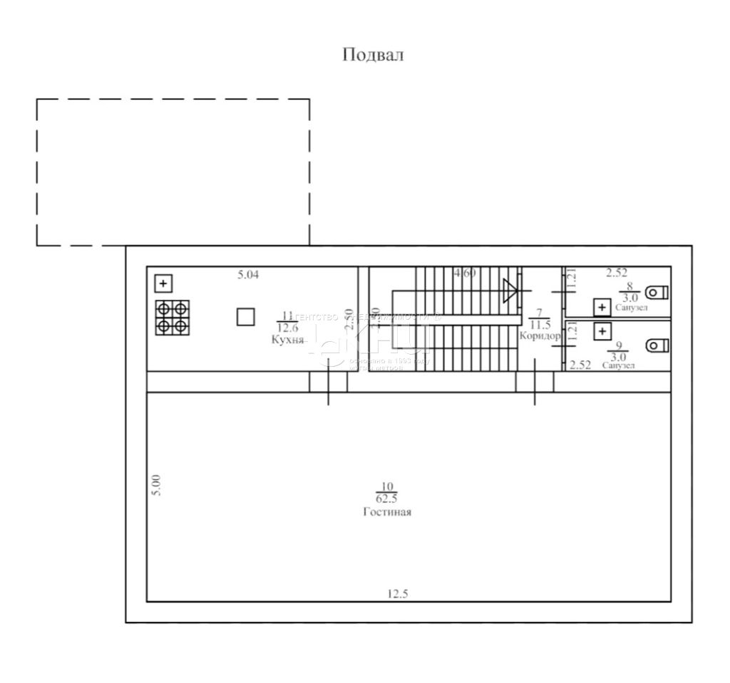
Площадь 306.5 кв.м.
Площадь земли 383 сот.
Строение 3-этажный Дом
Материал стен Монолитно-блочный
Крыша Металлочерепица
Вода Центральное в/с
Канализация Центральная
Отопление Индивидуальное

Продаю эксклюзивный дом в перспективном месте Нижнего Новгорода. Новая постройка из качественных материалов. White box , без чистовой отделки. Вся проводка, теплые полы, отопление сделаны. Окна Rehau. Дворовая территория выложена гранитной брусчаткой,   Перила, забор и уличные фонари - кованные. Система видеонаблюдения по всему периметру. В доме два входа. Первый этаж и подвал возможно использовать под коммерческую недвижимость. 

Информация о контактах у вновь введенных объектов за последние 3 дн. доступна только авторизованным пользователям системы "Центр".
Почему мы это делаем